Descrizione

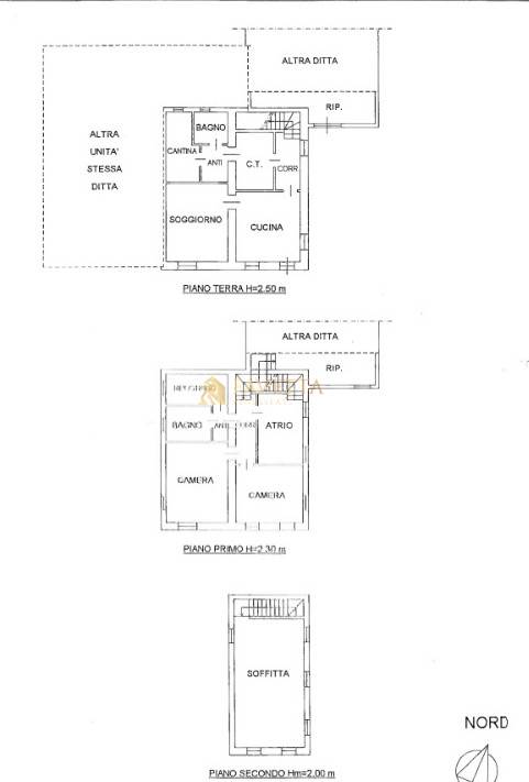
In zona panoramica, immersa nelle colline in zona del Prosecco DOCG, proponiamo in vendita casa su 3 livelli, totalmente da ristrutturare con annessi, garage e giardino privato. Ottima per abitazione privata o struttura ricettiva B&B. L'immobile è suddiviso con zona giorno, cantina, rimessa mezzi agricoli al piano terra, zona notte al piano primo e grande mansarda travata a vista al piano secondo. Giardino privato circostante. Zona veramente tranquilla.


Caratteristiche principali

Stato Immobile
Da Ristrutturare
Grado
Medio
Lati Liberi
4
Giardino
Privato
Tipo Cucina
Abitabile

Richiedi informazioni

Invia
Cookie preference